

Software desarrollado en AsisCAD, con el cual se ahorra mucho tiempo al momento de dibujar, detallar y calcular cantidades, planillas de planos estructurales y arquitectónicos




Ver la información completa del ACERES en el siguiente link:
http://asiscad.com/wp-content/uploads/2025/04/Informacion-ACERES-1.pdf
O puede descargar el Informativo Completo del ACERES picando en el link:
https://www.mediafire.com/file/8x3ezyxpujcnmip/Informaci%25C3%25B3n_ACERES.pdf/file


10 Videos con las funciones más importantes del ACERES 25
1) Dibujo 2D y 3D de plantas.
2) Armado de Cimentación y Cuadro de Plintos o Zapatas.
3) Detalle de Vigas y acero en nervios de Losa.
4) Armado y Cuadro de Columnas.
5) Planilla Acero de Refuerzo.
6) Planilla de Acero Estructural.
7) Detalle Proyectos de ETABS.
8) Cantidades de Obra – anexos y tablas.
9) Acotamiento Rápido.
10) Tuberías y Listado Accesorios.
Opciones software ACERES ¡Ya disponible!
APLICACIONES


Dibuja 3D de la Estructura, Edificación, Tuberías, muebles, cerchas, etc.

Dibuja rápidamente paredes, ventanas y puertas en 2D y 3D.

Dibuja y detalla Planos Estructurales y Arquitectónicos.

Calcula y genera Planilla de Acero de Refuerzo y Estructural.

Dibuja rápidamente paredes, ventanas y puertas en 2D y 3D.

Características
• Software para uso en proyectos de Arquitectura, Ingeniería, Eléctrico-Sanitario, Muebles modulares, etc.
• Aplicación muy útil para calcular las cantidades de obra de todos los rubros, ya sea en unidades, metros lineales, cuadrados o cúbicos, Kg, etc., con su respectivo anexo de cálculo.
• Funciona dentro de AutoCAD en todas sus versiones y es compatible con ETABS, SAP, REVIT y EXCEL.
• Se recomienda tener conocimientos básicos de AutoCAD en 2D.
• Es 100% personalizable en nombres de varillas con sus diámetros y pesos, unidades para el cálculo de la cantidad, textos, cotas, colores, grosor de líneas para la impresión y escalas.
Funciones

Calcula cantidades de obra (1/19)
Las cantidades se calculan usando las Tarjetas de Rubro que se insertan en el plano de AutoCAD, se puede calcular en m, m², m³, Kg, Und, etc. Las cantidades pueden ser usadas para presupuestos, avances de obra, liquidación de proyectos, cálculo de materia prima como cemento, arena, ripio, bloques para mamposterías o alivianamiento de losas, etc.

Anexos de cálculo (2/19)
Se puede generar los anexos de cualquier rubro con las fórmulas.

Exportar Excel (3/19)
Las cantidades de obra y los anexos de cálculo se pueden exportar a EXCEL o a otros programas de presupuestación y control de obra. Además se puede incluir imágenes.

Identificadores (4/19)
Coloca textos Identificadores cerca de los objetos calculados con los datos de la cantidad y los acota. Se puede indicar un gráfico, especificar el tamaño, color y si tiene sombra.

Dibujo tablas con formulas (5/19)
Las filas y columnas de las Tablas pueden ser personalizadas y asignar fórmulas con decimales. Al cambiar un valor se calcula automáticamente. Se pueden totalizar las columnas y asignar cualquier fórmula a textos de AutoCAD.

Paredes, ventanas y puertas 2D y 3D (6/19)
Dibujo rápido de paredes, ventanas y puertas, con distintos modelos, medidas y alturas. Se puede personalizar colores, tipos de cerraduras y visualizar con las puertas abiertas o cerradas. Además se presenta la nomenclatura estándar de los gráficos.

Dibujo 3D (7/19)
Crea dibujos en 3D de edificaciones, muebles modulares, cubiertas, gradas, estructuras metálicas, etc. Convierte líneas en tuberías y accesorios en 2D y 3D, y las cantidades las exporta a Excel.

Menú de Inserción (8/19)
Menú de inserción de bloques 2D Y 3D, para muebles de oficina, cocina, hogar, instalaciones, simbología, ambientación, puertas, ventanas, etc. Librería con más de 2000 bloques.
Se insertan bloques al plano en 2D y 3D, luego se genera en Excel la proforma con o sin gráficos, se obtiene la orden de producción y los despieces.

Dibujo plantas (9/19)
Dibujo de plantas de cimentación, losas de hormigón armado o de estructura metálica con planchas DECK.

Armados plintos o zapatas (10/19)
Llenado automático del Cuadro de Plintos o zapatas con número, medidas, ubicación, marcas y detalle gráfico.

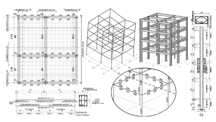
Armado columnas (11/19)
Dibujo y detalle automático del cuadro de columnas, que contiene los aceros, marcas, traslapes, estribos, corte longitudinal y transversal. Además cuenta el número de columnas, nos da la sección respectiva, el listado de ejes para la ubicación y los niveles.

Armado vigas (12/19)
Dibujo y detalle automático de vigas o cadenas, con el corte longitudinal y transversal, aceros principales, marcas, traslapes, refuerzos y estribos de acuerdo al código ACI y a las normas NEC.

Armado de cualquier elemento estructural (13/19)
Detalle de gradas, muros, nervios de losa, diafragmas, etc. Ingreso de marcas con cualquier tipo de acero, diámetro y medidas. Puede asignar marcas a aceros en varilla o perfil metálico de cualquier elemento estructural (muros, diafragmas, gradas, puentes, etc.)

Dibujo perfiles (14/19)
Puede dibujar cualquier perfil de estructura metálica o de hormigón, colocar el centro de gravedad y acotarlo, calcular sus propiedades como momentos y productos de inercia, etc.

Dibujo 3D Estructura. (15/19)
A partir de las plantas de cimentación o losas se crea el 3D de la estructura metálica o en hormigón armado. Se pueden hacer perspectivas, cortes, gradas, etc. El modelo se puede exportar a REVIT o 3DMAX y además de puede generar archivos STL para impresión 3D (maqueta real).

Planilla de aceros. (16/19)
Cálculo del peso del acero de Refuerzo y Estructural a través de las marcas y la planilla de aceros. Se Colocan Marcas a perfiles metálicos en Losa o cerchas. La planilla calculada se puede dibujar en el plano o se puede exportar a EXCEL.

Exportar DXF. (17/19)
En las columnas y vigas de las plantas de cimentación y losas se crean líneas en 3 dimensiones, y 3DFACE para muros y losas, Estos elementos se pueden exportar en formato DXF para ETABS o SAP.

Leer archivos ETABS. (18/19)
Lee proyectos de ETABS y en AutoCAD dibuja y detalla plantas de cimentación, losas, columnas y vigas con las cuantías o mm², dibuja el 3D de la estructura, y anima las deformaciones con cualquier combinación de carga.

Comandos Especiales. (19/19)
Colección de más de 50 comandos muy útiles para el dibujo, manejo, edición e impresión de planos. Además de una calculadora de expresiones, formulas y un asistente tipo tablet que permite iniciar aplicaciones, documentos, páginas web o abrir carpetas.
